Please select a store for service phone info.

Select a store

Winnebago Voyage Travel Trailers

Winnebago Voyage Travel Trailers for Sale

Break out of the everyday for days on end. This all-new, half-ton travel trailer is built for explorers who dream of extended adventures, but aren’t willing to leave comfort and connectivity behind. With standard washer/dryer prep on most floorplans, unmatched storage, and full refrigerator and king bed options, the Voyage is the escape you’ve been waiting for.

Voyage Models


Floorplan

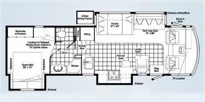
Winnebago Voyage 35A floorplan

Description

Discover the allure of adventure with the 2008 Winnebago Voyage 35A. This charming motorhome combines comfort and functionality, offering a spacious and inviting layout. The front living area is perfect for relaxation, featuring a cozy lounge chair and a convertible dinette that ensures everyone has a place to unwind. The center kitchen is well-equipped with a three-burner cooktop and a mid-size refrigerator, making meal preparation a breeze whether you're parked in a scenic spot or on the move. As you move towards the rear, you'll find a thoughtfully designed center bath, providing convenience and privacy. The rear bedroom is a haven of tranquility, featuring a plush queen bed and ample wardrobe space, ensuring restful nights after a day of exploration. With three slides, the Voyage 35A offers expansive living areas, while the 20 ft. powered retractable awning invites you to enjoy the great outdoors in style. Powered by a robust Triton V10 engine on a Ford F-Series Super Duty chassis, this RV is ready to take you on journeys far and wide. For more details, visit your nearest General RV dealership today!

Shop 35A

Shop Voyage


Total: 0
Total: 0
Loading...

General RV works hard to ensure the accuracy of all its listings however we are not responsible for any misprints, typos, or errors found in our website pages. Manufacturer-provided pictures, specifications and features may be used as needed. Inventory shown may be only a partial listing of the entire inventory. Please contact us at 888-436-7578 for availability as our inventory changes rapidly.

*All RV prices exclude tax, title, registration and fees, including documentary service fees. All payments are with approved credit through dealer lending source. Advertised monthly payment is based on 20% cash down, plus tax, title, registration and fees, at 7.99% APR for 96 months on finance amounts under $10K, at 7.99% APR for 144 months on finance amounts from $10K to $25K, at 7.99% APR for 180 months on finance amounts from $25K to $50K, and at 7.99% APR for 240 months on amounts over $50K. $79 monthly payment based on purchase price of $9,999 with 20% down at 8.24% APR for 218 months. $439 monthly payment based on purchase price of $69,995 with 20% down, at 6.49% APR for 240 months. For select models only. Rate and payments are subject to change at any time. Conditions apply. See dealer for details.