Please select a store for service phone info.

Select a store

New 2026 Tiffin Open Road Allegro 34PA

Class A|South Weber, UT| Stock# 325522

$249,995

$1,673/mo.*

MSRP: $309,092

Payment Calculator
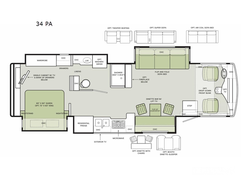
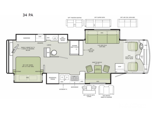
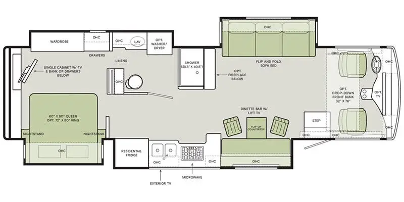
Floorplan Image

Experience the open road like never before with the 2026 Tiffin Open Road Allegro 34 PA. This luxurious motorhome is designed to accommodate up to seven travelers comfortably, with a choice of a queen or king bed in the rear bedroom, a convertible sofa bed, and an optional drop-down bunk. The spacious interior features four slide-outs, maximizing your living space and providing a homey feel wherever you roam.

The heart of the RV, the kitchen, is equipped with a full-size electric refrigerator, convection cooking, and a three-burner cooktop, making meal preparation a breeze. The elegant center living area is perfect for relaxation, with a flip-and-fold sofa bed and an optional fireplace for those cozy nights in. The powered retractable awning extends your living space outdoors, perfect for enjoying the scenery and fresh air.

This motorhome is built on a robust Ford F53 chassis, offering 335 horsepower and 468 torque, ensuring a smooth and powerful drive. With a generous fresh water capacity of 70 gallons and ample storage throughout, the Open Road Allegro 34 PA is ready for extended adventures. Visit your nearest General RV dealership to explore this incredible RV and start your journey today!

Specifications

RV Details

  • Sleeps7
  • Slides4
  • Length36.08 ft. 433 in.
  • Width8.42 ft. 101 in.
  • Height12.83 ft. 154 in.
  • GVWR26000 lbs.
  • VIN1F66F5DN5R0A03486

Tanks & HVAC

  • Fresh Water1 Tank(s) | 70 gal.
  • Black Water1 Tank(s) | 50 gal.
  • Gray Water1 Tank(s) | 66 gal.
  • Propane1 Tank(s) | 24 gal.
  • HeatAutomatic

Appliances

  • Awnings1 | Powered Retractable Awning
  • BedsQueen (x1), King (x1), Convertible (x1)
  • Bunks1
  • ShowerPlastic / Glass
  • RefrigeratorFull-Size
  • Cooktops | Microwave3 | Yes
  • Washer/Dryer PreppedYes
  • Axles | Tire Size255/80R 22.5

Vehicle Details

  • FuelGas | 80 gal.
  • Torque468 ft-lbs.

All Amenities

Queen and King beds
Convertible bed
Bunk bed
Convection cooking
3-burner cooktop
Washer/dryer
Center kitchen
Front living area
Center bath
Rear bedroom
Powered retractable awning
Full-size electric refrigerator
Dinette bar with lift TV
Flip and fold sofa bed
Optional drop-down front bunk
Optional fireplace
Microwave
Residential fridge
Exterior TV
Automatic heater
Ford F53 chassis
335 horsepower engine
468 torque

General RV works hard to ensure the accuracy of all its listings however we are not responsible for any misprints, typos, or errors found in our website pages. Manufacturer-provided pictures, specifications and features may be used as needed. Inventory shown may be only a partial listing of the entire inventory. Please contact us at 888-436-7578 for availability as our inventory changes rapidly.

*All RV prices exclude tax, title, registration and fees, including documentary service fees. All payments are with approved credit through dealer lending source. Advertised monthly payment is based on 20% cash down, plus tax, title, registration and fees, at 7.99% APR for 96 months on finance amounts under $10K, at 7.99% APR for 144 months on finance amounts from $10K to $25K, at 7.99% APR for 180 months on finance amounts from $25K to $50K, and at 7.99% APR for 240 months on amounts over $50K. $79 monthly payment based on purchase price of $9,999 with 20% down at 8.24% APR for 218 months. $399 monthly payment based on purchase price of $69,995 with 25% down, at 6.99% APR for 240 months. For select models only. Rate and payments are subject to change at any time. Conditions apply. See dealer for details.