Please select a store for service phone info.

Select a store

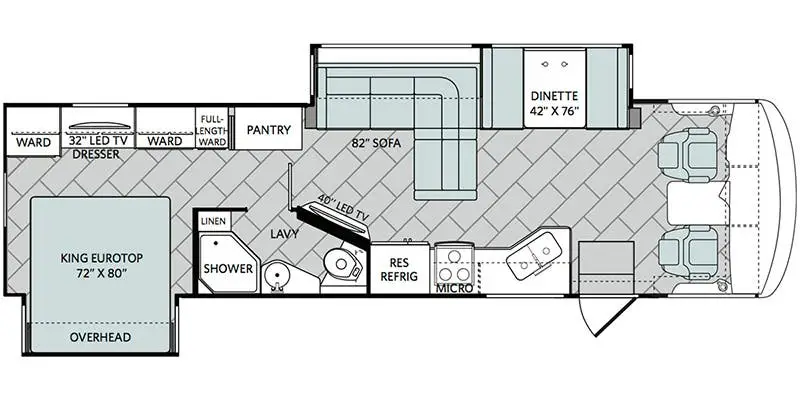
Holiday Rambler Vacationer XE 32A floorplan

Holiday Rambler Vacationer XE 32A Class A RVs for Sale

Experience the open road like never before with the 2018 Holiday Rambler Vacationer XE 32A. This motorhome is designed to be your luxurious home away from home, offering ample space and comfort for up to eight travelers. The thoughtfully designed floorplan features a front kitchen equipped with a three-burner cooktop and a mid-size electric refrigerator, making meal prep a breeze. The center living area boasts an 82" sofa and a spacious dinette, perfect for family gatherings or entertaining guests. With two slide-outs, the interior feels open and inviting, ensuring everyone has room to relax. In the rear, you'll find a serene bedroom oasis with a king-size Eurotop bed, surrounded by ample storage options, including a full-length wardrobe and dresser. The center bath is conveniently located and features a stylish shower with plastic and glass doors. Enjoy the outdoors under the 18 ft. powered retractable awning, providing shade and comfort during your adventures. Built on a robust Ford F-Series Super Duty chassis and powered by a Triton V10 engine, this RV delivers both power and reliability. With a towing capacity of 5,000 pounds, it's ready to bring along more fun. For more details or to see this beauty in person, visit your nearest General RV dealership.


Total: 0
Total: 0
Loading...

General RV works hard to ensure the accuracy of all its listings however we are not responsible for any misprints, typos, or errors found in our website pages. Manufacturer-provided pictures, specifications and features may be used as needed. Inventory shown may be only a partial listing of the entire inventory. Please contact us at 888-436-7578 for availability as our inventory changes rapidly.

*All RV prices exclude tax, title, registration and fees, including documentary service fees. All payments are with approved credit through dealer lending source. Advertised monthly payment is based on 20% cash down, plus tax, title, registration and fees, at 7.99% APR for 96 months on finance amounts under $10K, at 7.99% APR for 144 months on finance amounts from $10K to $25K, at 7.99% APR for 180 months on finance amounts from $25K to $50K, and at 7.99% APR for 240 months on amounts over $50K. $79 monthly payment based on purchase price of $9,999 with 20% down at 8.24% APR for 218 months. $439 monthly payment based on purchase price of $69,995 with 20% down, at 6.49% APR for 240 months. For select models only. Rate and payments are subject to change at any time. Conditions apply. See dealer for details.