Please select a store for service phone info.

Select a store

Forest River Rockwood Windjammer Travel Trailers for Sale

Rockwood Windjammer Models


Floorplan

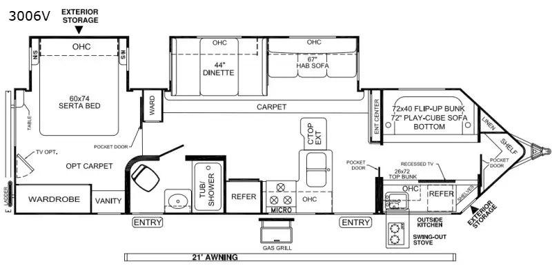
Forest River Rockwood Windjammer 3006V floorplan

Description

Forest River RV Rockwood Windjammer travel trailer 3006V highlights: Front Bunk Room Outside Kitchen Two Entry Doors Rear Bedroom From double slide outs to a front bunk room there is plenty of room for your whole family in this 3006V Rockwood Windjammer! In the bunk room you will find a Play-Cube sofa on the bottom and a bunk above. Across the room there is another bunk and a recessed TV. In the evenings come relax at the sofa or the dinette. Both the sofa and dinette easily convert into additional sleeping space, if needed. Fixing meals for your family is easy with two kitchens - one inside and one outside. At the inside kitchen all of the amenities are along the curbside. The outside kitchen features a swing-out stove, sink, and a refrigerator for drinks. The bathroom has a convenient outside door so now you don't have to walk through the whole trailer just to get to the bathroom! For a good night's rest come enjoy the Serta queen bed or optional king. There is plenty of storage throughout this model with all of the overhead cabinets and outside with the exterior storage and more! When you choose a Forest River Rockwood Windjammer you know that you are getting a quality travel trailer! Each model features a v-nose design which allows every possible space to be used for interior room and storage. This v-nose design also allows for better aerodynamics. Along the exterior there is a fully aluminum frame as well as a one-piece seamless roof, and MORryde strut assist fold-out steps. The Standard Package includes the following - a power awning with adjustable rain dump and LED light strip, flush mount stainless steel sinks with "high rise" lift-off, LCD TV with upgraded sound bar speaker system and multi-directional antenna, a multi zone stereo with DVD/CD/AM/FM and Bluetooth control, plus so much more!

Shop 3006V

Shop Rockwood Windjammer


Total: 0
Total: 0
Loading...

General RV works hard to ensure the accuracy of all its listings however we are not responsible for any misprints, typos, or errors found in our website pages. Manufacturer-provided pictures, specifications and features may be used as needed. Inventory shown may be only a partial listing of the entire inventory. Please contact us at 888-436-7578 for availability as our inventory changes rapidly.

*All RV prices exclude tax, title, registration and fees, including documentary service fees. All payments are with approved credit through dealer lending source. Advertised monthly payment is based on 20% cash down, plus tax, title, registration and fees, at 7.99% APR for 96 months on finance amounts under $10K, at 7.99% APR for 144 months on finance amounts from $10K to $25K, at 7.99% APR for 180 months on finance amounts from $25K to $50K, and at 7.99% APR for 240 months on amounts over $50K. $79 monthly payment based on purchase price of $9,999 with 20% down at 8.24% APR for 218 months. $439 monthly payment based on purchase price of $69,995 with 20% down, at 6.49% APR for 240 months. For select models only. Rate and payments are subject to change at any time. Conditions apply. See dealer for details.